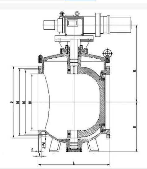
上装偏心半
球阀和侧装半球阀性能区别上装式偏心半球阀选型 永利3044浏览器主营阀门有:截止阀,电动截止阀因堆焊不同合金(或组合球)双金属密封副的选配可以用于耐磨、耐腐蚀、耐高温且要求严... 上装式半球阀与侧装式半球阀对比上装式电动偏心半球阀体中心轴线与半球中心轴线形成尺寸偏置,且仅在阀体一侧设置密封副的阀门.以球体绕阀体中心线作旋转来达到开启、关闭的一种阀门...

对于侧装式球
阀,根据使用场合的不同以及通径的大小,阀体有整体式与分体式两种,分体式又分为两体式(两片式)与三体式(三片式)。 1、上装式球阀 上装式球阀的结构特点是阀体做成整体,...关于偏心半球阀侧装式和上装式的差别的说明 偏心半球阀按阀芯装入阀体的方位不同,阀门分为侧装式和上装式两种结构形式。这两种结构形式各有利弊,现简述如下。 1侧装式结构紧凑,阀体...偏心半球阀有侧装式偏心半球阀和上装式偏心半球阀之分,偏心半球阀堆焊不同合金(或组合球)双金属密封副的选配可以用于耐磨、耐腐蚀、耐高温等且又要求严格密封...
1. 安装方式不同:上装偏心半球阀的球体偏心,需要与管道垂直安装,而侧装阀门可以水平或斜向安装。
2. 内部结构不同:上装偏心半球阀内部结构简单,球体偏心,只需要与阀杆呈90度夹角开度即可控制介质通断;而侧装阀门的密封面较多,需要对多个密封面进行控制,内部结构较复杂。
1. 上装偏心半球阀: 适用于介质粘度较小、颗粒杂质少的管路,比如水、气、油等介质的控制。
2. 侧装阀门: 适用于介质较差、颗粒多的管路,如化工、冶金、电力等领域。
1、其结构采用偏心契紧原理通过传动机构达到闸紧、调节、关闭的目的,密封副是金属面环带硬面接触 密封,双偏心结构在开启时阀芯位于藏球室内,流通截面大,且阀门不被冲刷,关闭时阀芯不被冲刷,开 启时阀芯球面沿阀座渐进,有效地切除结垢障碍,实现可靠密封。它对两相混流易结垢固体析出的混流输 送特别有效
2、阀门的半球用双金属,母材上堆焊不同的合金,阀座也作相应堆焊经特殊的处理,密封面组合成防腐 、耐磨、高强度等各种类型,满足不同场合需求
3、密封严密、输送有害气体可达零泄露
4、密安装方法分类:
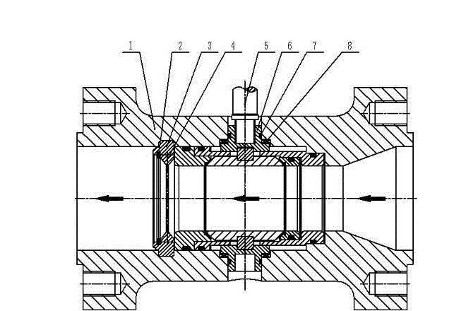
阀门内部零部件从阀门上部进行安装和拆解的阀门,优点是维修时,无需从管线上拆除,即可更换阀门里的配件。侧装式偏心半球阀 阀门的结构是一体式的,内部零部件是从侧面进行安装和拆解的一种阀门。封副的阀芯留有补偿量、当阀做磨损后,关闭时再转动少许,任能可靠密封,延长了使用寿命。此 外,用户将压紧螺母拧掉,调整或更换后阀座仍可用,避免了阀门密封失效后,整台报废的弊端
偏心半球阀与上装式偏心半球阀有什么区别: 1:偏心半球阀利用偏心阀体,偏心球体和阀座,阀杆作旋转运动时在共同轨迹自动定心,关闭过程中越关越紧,完全达到良好的密封目的。桂隆阀门的球体和阀座完全脱离,消除了密封圈的磨损,克服了传统球体阀座与球体密封面始终磨损的问题,非金属弹性材料被嵌入金属座中,阀座金属面受到良好的保护。本产品特别适用于钢铁业,铝业,纤维,微小固体颗粒,纸浆,煤灰,石油气等介质。 2:上装式偏心半球阀的主要功能是在偏心半球阀的基础上多了一个功能,就是便于在线维修。